Saltar al contenido
Inversión y desarrollo
Menú
Proyectos
Inmobiliarios
Transacciones
Inmobiliarias
Expansión
y Retail
Gestión
de propiedades
Equipo
de Trabajo
Un estilo de vida en su
maxima expresión
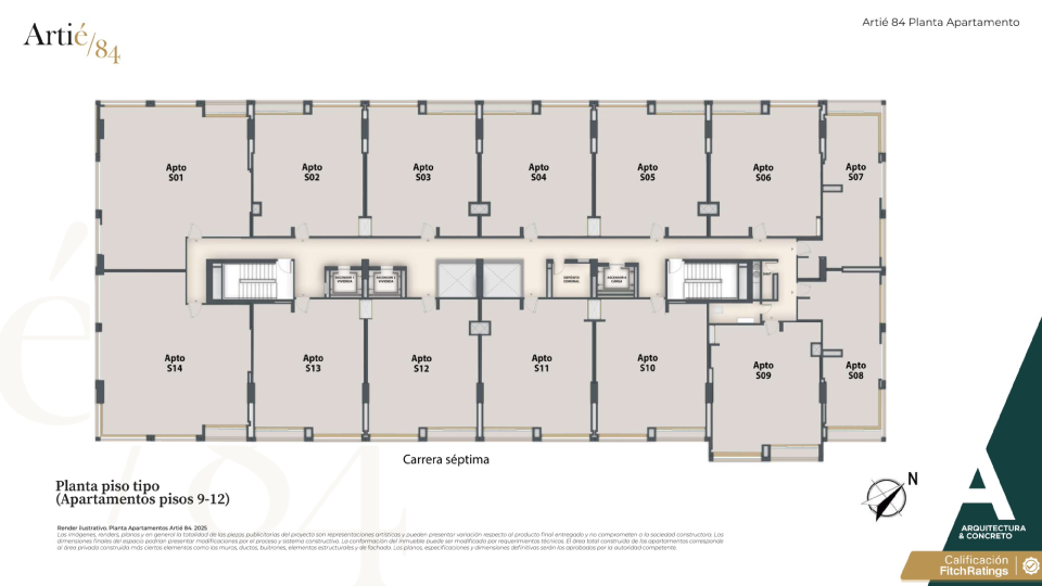
Artié 84 es un proyecto deapartamentos y oficinas que se desarrollará en La Cabrera, Bogotá, un sector privilegiado y estratégico de La Capital.
Oficinas 7.300 m2 (Distribuidos en plantas de 1.600m2*. Del piso 2 al 6)
*Área construida aproximada.
Apartamentos (De 55,63,76,79 y 118 m2*. Del piso 7 al 12)
*Área construida aproximada.
*Artié 84 cuenta con la posibilidad de arrendamiento para estancias cortas
Artié 84 contará con amenities exclusivos para apartamentos y oficinas, los cuales están pensados para cada necesidad y estilo de vida.